閉口樓承板的幾大優勢
閉口樓承板作為樓承板中使用率較高的一種,他存在的優勢有哪些呢?對于閉口樓承板的這些優勢我們又該如何很好的加以利用呢?下面小編帶你了解閉口樓承板,了解閉口樓承板的優勢。
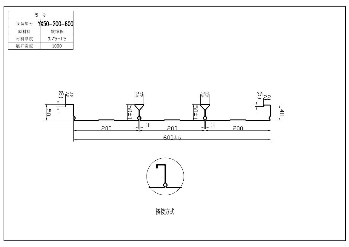
閉口樓承板的使用愈加的普及和廣泛,它相較于普通開口扳具有許多優勢,同時也滿足現在的施工要求。對于閉口樓承板,我們可以從板型截面和技術要求兩大方面來全面的分析閉口樓承板的十大優勢。


一、閉口樓承板板型板底平整、腹板貼合,可根據各種房間的不同功能和需要提供多種板底天花處理方式。如直接噴漆可做成企口型天花板(狀似鋁扣板)、也可披刮膩子后涂刷水性涂料做成平板天花板、還可直接貼壁布或壁紙裝飾成彩色天花板或利用閉口獨特的卡槽懸吊系統安裝吊頂,而能更經濟地滿足業主的審美需要。
二、閉口樓承板截面重心距板底16mm左右,小于開口型或縮口型截面參數,按塑性理論分析組合樓板結構承載力時,混凝土壓力合力中心與鋼板拉力合力中心具有更大的內力臂,這表示材料強度發揮更充分,因此閉口組合樓板具有更大的結構承載力或者說具有更高的安全系數。
三、閉口樓承板組合樓板能夠減小樓板厚度,增大凈空高度。采用開口樓承板,小板厚需126mm,而采用該板型小只需104mm。
四、閉口樓承板獨特的卡槽懸吊系統能為建筑物板底機電管道安裝提供方便,該系統無需在板底打眼或預埋鐵件,只需輕松將兩只卡片插入板底溝槽內,便可提供200—250kg吊重吊點,拆卸也很方便。
五、閉口樓承板肋角使混凝土對樓承板的握裹力更強,組合樓板達到真正的組合作用。
六、閉口樓承板嚴格按照設計鋪板圖在工廠加工,排板順序均已編號,現場施工無需切割和補板,方便于鋼構公司現場安裝。
七、閉口樓承板排板時只需按跨距順排,與鋼梁順接時,由于板底平整,有足夠與鋼梁實接面積。因此不用處理可直接鋪過去(開口板因要避免與鋼梁虛搭而需切割補板)。
八、開口板在端口處應封堵板,以免澆筑混凝土進從板底開口漏漿,而閉口樓承板因腹板閉合而不用端頭堵板。
九、閉口樓承板因板底平整,無論與鋼梁橫搭還是順搭,均能與鋼梁上翼板充分結合,因此鋼梁上翼板頂面無需噴防火涂料。而開口型鋼承板與鋼梁之間具有空洞,需做肩塞補滿空洞。
十、閉口樓承板完全替代下層鋼筋,減少現場鋼筋制作量,可減輕現場勞動量,加快施工速度。同時取消原設計下層鋼筋,可為樓板中鋪設電線套管提供更大空間。
下一篇:樓承板的名稱
上一篇:組合樓承板的施工細節有哪些”
聯系海逵
無錫海逵樓承板是專業樓承板廠家,提供開、縮、閉口樓承板、壓型鋼板、鋼筋桁架樓承板、鋁鎂錳板及CZ型鋼,廠家直銷,價格優惠!

